Atelier Piccolo
architecture
salon sonore
sauna et solarium
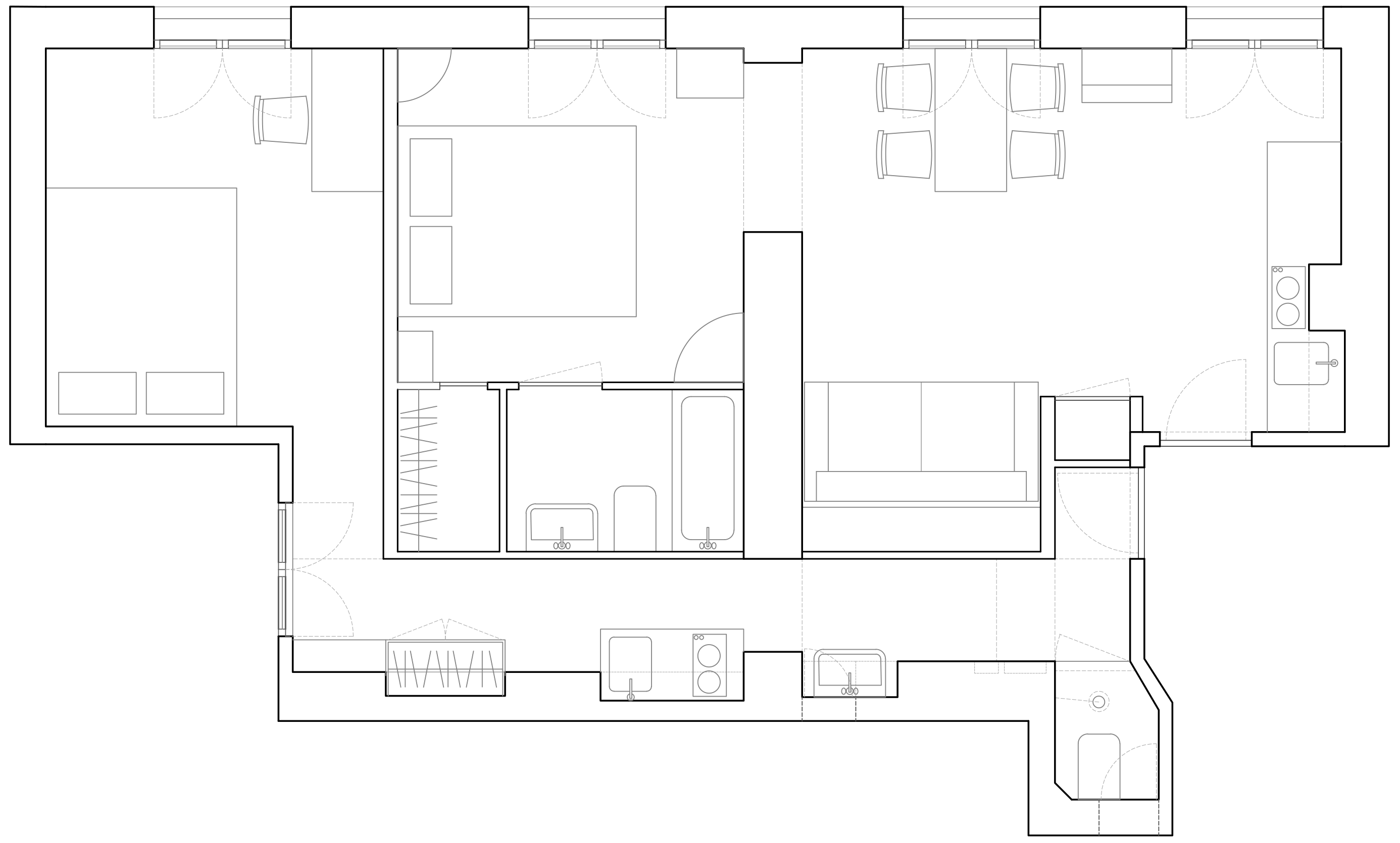
appartement parisien
maison en pierre et paille
meuble mur porte
maison rurale
maison près de la voie ferrée
artisanat et design
expérimentation
chantier participatif









